BARRIEREFREIE 3 ZIMMERWOHNUNG MIT PARKPLATZ IN MITTERTREFFLING

Lage: 4209 Engerwitzdorf (Mittertreffling) | Oberösterreich

Beschreibung

Diese barrierefreie 3 Zimmer Wohnung mit Parkplatz befindet sich im Ortszentrum Mittertreffling, ca. 8 km von der Universität Linz entfernt. Mittertreffling ist sowohl über die A7 als auch über die Bundesstraße erreichbar und bietet eine perfekte Infrastruktur.
Direkt von der Haustür aus können Sie im Gebiet der Pferdebahnpromenade, ein herrliches Waldstück zwischen Linz und Neumarkt/M., Ihre Freizeit genießen.
Ausstattung:
Parkettböden, moderne Raumaufteilung, Parkplatz, Kellerabteil, Kabelanschluss, unmöbliert.
Raumaufteilung:
großzügiges Vorzimmer, Badezimmer, 2 Schlafzimmer, WC extra, Wohnküche
Einmalige Kosten:
Kaution: EUR 3.000,00
Die bestehende Möblierung (siehe Fotos) kann für eine Ablöse in Höhe von EUR 250,00 übernommen werden.
Laufende Kosten:
Miete inkl. Betriebskosten, Abstellplatz und Steuer: EUR 955,82
Die Strom- und Heizkosten werden nach individuellem Eigenverbrauch, direkt über den Versorger abgerechnet.
Für einen Besichtigungstermin oder Fragen steht Ihnen Herr Roman Affenzeller unter +43 699 / 10 610 400 gerne zur Verfügung.

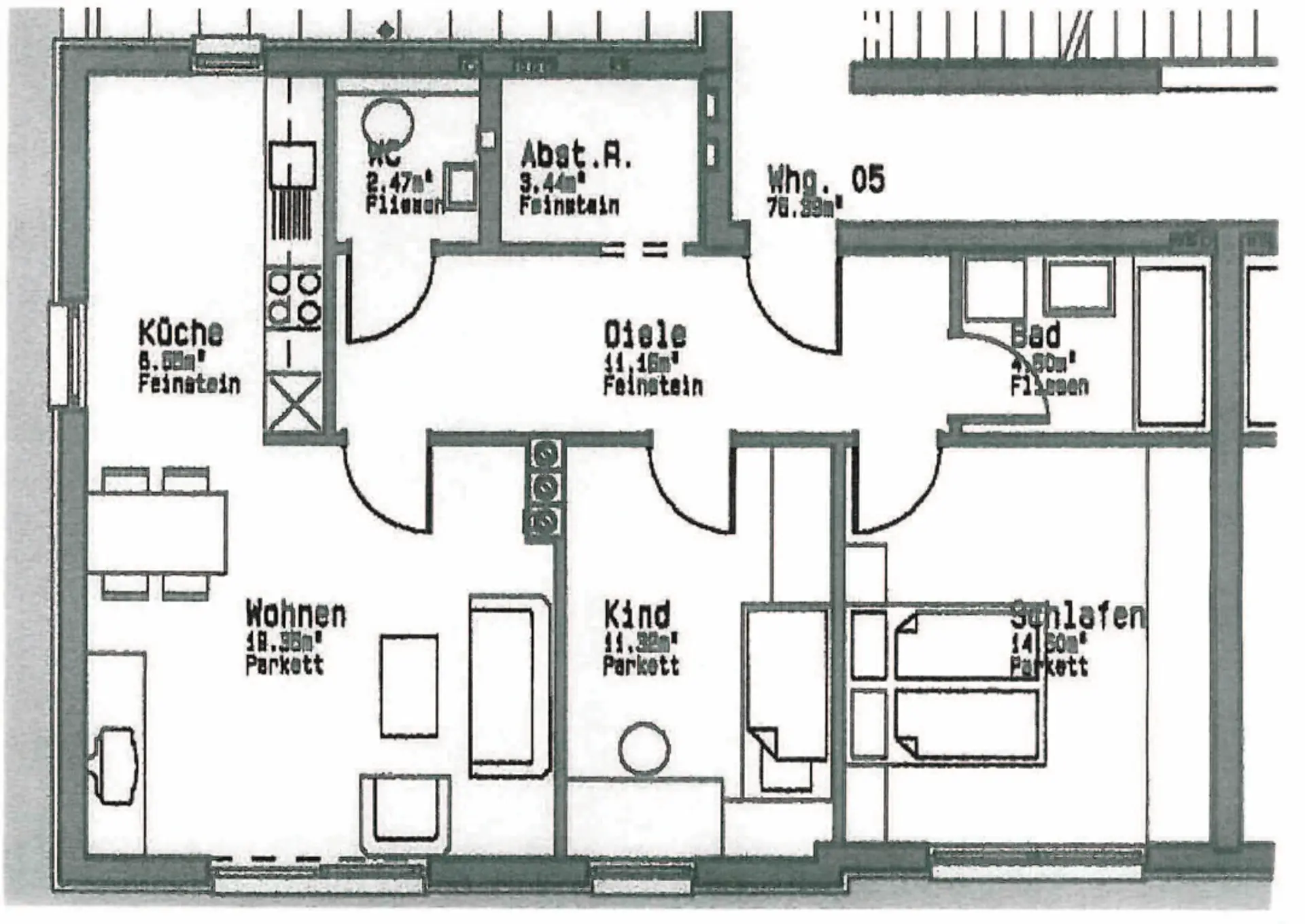
Lagepläne

Plan 0

Fakten

Objektnummer:
2407
Objekttyp:
Wohnung
Kellerfläche:
5 m²
Wohnfläche:
75 m²
Zimmer:
3
Bad:
1
WC:
1
Baujahr:
2008
Zustand:
Gepflegt
Verfügbarkeit:
Verfügbar

Preisdetails

Miete/m² netto:
7,48 €
Gesamtmiete*:
956 €
* Miete + Nebenkosten (inkl. USt.)
Nettomiete:
562 €
Betriebskosten netto:
283 €
Sonstige Kosten netto:
22 €
Umsatzsteuer:
89 €
Kaution:
3.000 €

Energieeffizienz

HWB:
64.00 kWh/(m²*a)
Klasse HWB:
C

Ansprechpartner

Roman  Affenzeller
Anfrage
Max. 500 Zeichen
Ich habe die Datenschutzvereinbarung gelesen und verstanden, und ich stimme der Verarbeitung meiner persönlichen Daten wie darin beschrieben zu. *