MAISONETTEWOHNUNG MIT BALKON - LANDSTRASSE NÄHE SCHILLERPARK

Lage: 4020 Linz | Oberösterreich

Beschreibung

Diese moderne, hochwertige Maisonettewohnung, befindet sich im absoluten Zentrum von Linz.

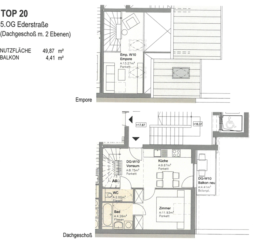
Auf der ersten Ebene im Vorraum angekommen, gelangen Sie in die Essküche mit hofseitigem Balkon. Auf der selben Ebene befindet sich ein kompakter intimer Bereich mit Schlaf- und Badezimmer sowie ein extra WC. Über die interne Treppe im Vorraum gelangen Sie auf die sonnige Empore, welche sich ideal als Wohnzimmer einrichten lässt. Auf Anfrage übersenden wir Ihnen selbstverständlich den Grundrissplan der Wohnung.

Die Ausstattung umfasst neben Parkett- und Fliesenböden, einer zentralen Fußbodenheizung mittels Fernwärme auch eine Klimaanlage für die Sommermonate. Die hochwertige DAN-Küche mit Miele Geräten sowie die Badezimmergrundausstattung wird von Eigentümerseite zur Verfügung gestellt.
Ein eigenes Kellerabteil bietet genügend Stauraum. Die Allgemeinfläche bietet Platz für Fahrräder samt Aufladestation für E-Bikes sowie einen überdachten Müllraum.
Gegen ein monatliches Entgelt besteht die Möglichkeit der Gartenmitbenützung im Innenhof der Liegenschaft. Im Garten befindet sich auch ein Hochbeet, welches ebenfalls extra angemietet werden kann.
Weiters weisen wir darauf hin, dass die Wohnung mit Zuhilfenahme von öffentlichen Förderungen des Land OÖ erstellt wurde und somit nur Hauptwohnsitz unter Berücksichtigung der Einkommensgrenzen vergeben wird.
Weitere interessante Details der Liegenschaft zeigen wir Ihnen sehr gerne bei einer unverbindlichen Besichtigung vor Ort.

Miete inkl. Betriebskosten und Steuer: EUR 925,95
Strom und Fernwärme extra nach Eigenverbrauch
Kaution: EUR 3.600,00

Die Wohnung ist ab dem 01.01.2026 verfügbar

Lagepläne

Plan 0

Fakten

Objektnummer:
2401
Objekttyp:
Wohnung
Balkon:
1
Balkonfläche:
4,41 m²
Kellerfläche:
4 m²
Wohnfläche:
50 m²
Zimmer:
2
Bad:
1
WC:
1
Baujahr:
2018
Zustand:
Neuwertig
Verfügbarkeit:
Verfügbar

Preisdetails

Miete/m² netto:
14,26 €
Gesamtmiete*:
926 €
* Miete + Nebenkosten (inkl. USt.)
Nettomiete:
713 €
Betriebskosten netto:
128 €
Umsatzsteuer:
84 €
Kaution:
3.600 €

Energieeffizienz

HWB:
34 kWh/(m²*a)
Klasse HWB:
B
fGEE:
0.8
Klasse fGEE:
A

Ansprechpartner

Roman  Affenzeller
Anfrage
Max. 500 Zeichen
Ich habe die Datenschutzvereinbarung gelesen und verstanden, und ich stimme der Verarbeitung meiner persönlichen Daten wie darin beschrieben zu. *