MODERNE 2 ZIMMERWOHNUNG MIT LOGGIA UND TG-STELLPLATZ NÄHE WIFI LINZ

Lage: 4020 Linz | Oberösterreich

Beschreibung

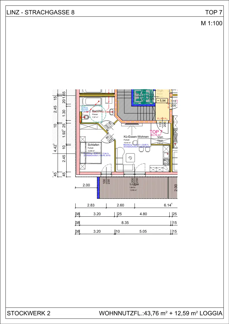
Diese moderne 2 Zimmerwohnung, befindet sich im 2.OG eines 2021 neu errichteten Wohnhauses in der Strachgasse - Nähe Wifi.

Die bestehende Küche wird vom Vermieter zur Verfügung gestellt. Ein Kellerabteil sowie ein eigener TG-Stellplatz sind vorhanden.

Die Wohnung ist ab sofort verfügbar und wird befristet auf 5 Jahre vermietet.

Die Gesamtnutzfläche beträgt 56,35 m² (43,76 m² Wohnung + 12,59 m² Loggia)

Miete inkl. BK, Tiefgaragenstellplatz und USt.: EUR 806,07
Strom und Fernwärme extra nach Eigenverbrauch

Fakten

Objektnummer:
2438
Objekttyp:
Wohnung
Loggia:
1
Wohnfläche:
56,35 m²
Zimmer:
2
Bad:
1
WC:
1
Etage:
2
Baujahr:
2021
Zustand:
Neuwertig
Verfügbarkeit:
Verfügbar

Preisdetails

Miete/m² netto:
10,00 €
Gesamtmiete*:
806 €
* Miete + Nebenkosten (inkl. USt.)
Nettomiete:
564 €
Betriebskosten netto:
118 €
Sonstige Kosten netto:
46 €
Umsatzsteuer:
77 €
Kaution:
2.500 €

Energieeffizienz

HWB:
30.5 kWh/(m²*a)
Klasse HWB:
B
fGEE:
0.73
Klasse fGEE:
A

Ansprechpartner

Anfrage
Max. 500 Zeichen
Ich habe die Datenschutzvereinbarung gelesen und verstanden, und ich stimme der Verarbeitung meiner persönlichen Daten wie darin beschrieben zu. *