TEILMÖBLIERTE 3 ZIMMER-ALTBAUWOHNUNG - GÜRTELSTRASSE 27

Lage: 4020 Linz | Oberösterreich

Beschreibung

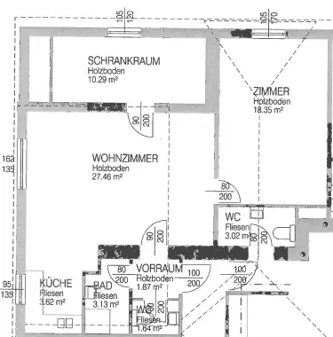
Diese ca. 65 m2 große 3 Zimmerwohnung befindet sich im DG eines Altbauwohnhauses in der Gürtelstraße 27, Nähe Lenaupark/Unionkreuzung.
Raumaufteilung:
Wohn- Essküche, 2 Zimmer, Bad/WC
Ausstattung:
Möblierte Küchenzeile inkl. E-Geräte, Fernwärmezentralheizung, Kunststoffisolierglasfenster, Parkettböden, Bad mit Dusche, WC extra, allgemeine Waschküche mit Waschmaschine und Trockner im Keller, Kellerabteil.
Kosten:
Miete inkl. Betriebskosten, Heizkosten, Warmwasser und Steuer: EUR 819,45
Die Stromkosten werden nach individuellem Eigenverbrauch direkt über den Versorger/Anbieter abgerechnet.
Kaution: EUR 2.500,00

Lagepläne

Plan 0

Fakten

Objektnummer:
2404
Objekttyp:
Wohnung
Kellerfläche:
3 m²
Wohnfläche:
65 m²
Zimmer:
3
Bad:
1
WC:
1
Zustand:
Gepflegt
Verfügbarkeit:
Verfügbar

Preisdetails

Miete/m² netto:
8,00 €
Gesamtmiete*:
819 €
* Miete + Nebenkosten (inkl. USt.)
Nettomiete:
520 €
Betriebskosten netto:
139 €
Umsatzsteuer:
66 €
Heizkosten brutto:
95 €
Kaution:
2.500 €

Energieeffizienz

HWB:
125.5 kWh/(m²*a)
Klasse HWB:
D
fGEE:
1.71
Klasse fGEE:
C

Ansprechpartner

Anfrage
Max. 500 Zeichen
Ich habe die Datenschutzvereinbarung gelesen und verstanden, und ich stimme der Verarbeitung meiner persönlichen Daten wie darin beschrieben zu. *